Ogłoszenia

Zamknij
Promuj to ogłoszenie

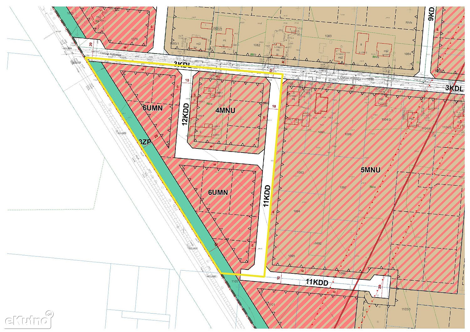
🔥 DZIAŁKI NA SPRZEDAŻ – KUTNO | ŚWIETNA LOKALIZACJA PRZY DK92! 🔥

Data dodania: 2026-04-08 20:08:40 ID: 17165

501 Pokaż numer krzychu-rychu@o2.pl

zdjecie ogloszenia

🔥 DZIAŁKI NA SPRZEDAŻ – KUTNO | ŚWIETNA LOKALIZACJA PRZY DK92! 🔥

Szukasz miejsca pod dom lub inwestycję, które naprawdę ma potencjał? 👉 To jest to!

📍 Kutno – ul. Kolberga / Objazdowa
📐 Działki od 843 m² do 1528 m²
💰 Atrakcyjne ceny – do negocjacji!

✔ media w drodze (woda, prąd, gaz, kanalizacja)
✔ teren płaski – gotowy pod budowę
✔ regularne kształty działek
✔ świetny dojazd i widoczność (idealne także pod biznes)

🏗 MPZP:
➡ zabudowa mieszkaniowa i usługowa
➡ idealne pod dom, bliźniaka lub działalność

🚧 Ogromny plus:
Drogi należą do miasta – nie kupujesz udziałów i nie martwisz się utrzymaniem!

💼 Dla inwestorów:
Możliwa sprzedaż, wynajem lub współpraca
👉 przygotuję teren pod Twoje potrzeby

📸 Sprawdź szkic – powierzchnie i ceny przy każdej działce!


Promuj to ogłoszenie