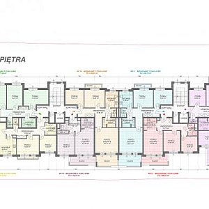
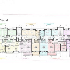
Budynek dwuklatkowy, 4- kondygnacyjny, niepodpiwniczony z 15 boksami garażowymi w parterze budynku. W parterze znajdować się będą również komórki oraz pomieszczenia techniczne. W każdej klatce schodowej winda osobowa do komunikacji między kondygnacjami. W skład każdego lokal mieszkalnego będzie wchodził balkon o powierzchni dostosowanej do wielkości lokalu.
Planowana struktura mieszkań:
3 lokale czteropokojowe o pow. 89,43m² – 79,11m²,
15 lokali 3 pokojowych o pow. 71,73m² – 56,41m²,
3 lokale 2 pokojowe o pow. 42,74m²
Teren działki będzie ogrodzony z wjazdem od strony ulicy Łokietka, brama przesuwna z automatyką, 8 miejsc parkingowych, drogi i chodniki z kostki brukowej, niewielki teren rekreacyjny z placem zabaw. Zainteresowani mogą dzwonić pod nr 24 355 58 15 lub 24 355 58 16
reklama
Brak komentarza, Twój może być pierwszy.
Dodaj komentarz
Użytkowniku, pamiętaj, że w Internecie nie jesteś anonimowy. Ponosisz odpowiedzialność za treści zamieszczane na portalu ekutno.pl. Dodanie opinii jest równoznaczne z akceptacją Regulaminu portalu. Jeśli zauważyłeś, że któraś opinia łamie prawo lub dobry obyczaj - powiadom nas redakcja@ekutno.pl lub użyj przycisku Zgłoś komentarz